新築戸建:西東京市田無町6丁目 | 西東京市の不動産ショップ株式会社SGA ホーム

売買 一戸建
  • 外観

  • 間取り図

  • 区画図

  • 外観

  • 外観

  • 周辺環境

  • 周辺環境

  • 周辺環境

  • 周辺環境

売買 一戸建
  • 外観

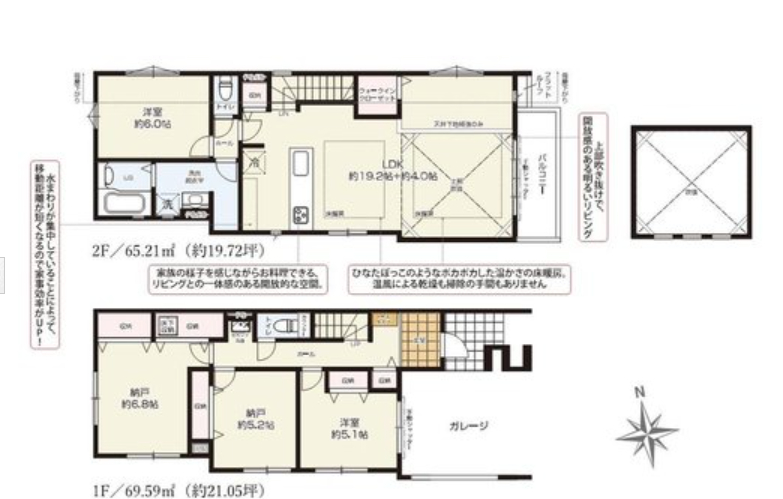
  • 間取り図

  • 区画図

  • 外観

  • 外観

  • 周辺環境

  • 周辺環境

  • 周辺環境

  • 周辺環境

NEW

新築戸建:西東京市田無町6丁目

7,699万円(税込)

おすすめポイント

LDK約23帖+吹抜天井の開放感♪収納充実

急行停車駅 徒歩約9分
駅前の充実した商業施設

建物面積134.80m2(車庫部分17.07m2含む)
リビング、各居室、収納ゆったりとしたスペース
LDKひろびろ約23帖
3面採光+吹抜天井で明るく開放的な空間
2階水回りでバルコニーまでフラットな洗濯導線
全室収納はもちろん、リビングに共用収納とWIC
洗面室にリネンスペース

~~~設備・特徴~~~

BELS/省エネ基準適合認定書あり / フラット35・S適合証明書 / 省エネルギー対策 / フラット35Sに対応

地盤調査済 / LDK20畳以上 / 年度内引渡可 / 省エネ給湯器 / 山が見える / スキー場が近い / ゴルフ場が近い

スーパー 徒歩10分以内 / 市街地が近い / 避暑地 / 南向き / システムキッチン / 浴室乾燥機 / 陽当り良好

駅まで平坦 / 閑静な住宅地 / 総合病院 徒歩10分以内 / 始発駅 / 整形地 / 田園風景 / シャワー付洗面化粧台

対面式キッチン / セキュリティ充実 / ハイルーフ駐車場 / ワイドバルコニー / 3面採光 / バリアフリー

トイレ2ヶ所 / 浴室1坪以上 / 2階建 / 複層ガラス / オートバス / 温水洗浄便座 / 床下収納 / 浴室に窓

吹抜け / TVモニタ付インターホン / 節水型トイレ / 緑豊かな住宅地 / 都市近郊 / 前面棟無 / 通風良好

全居室フローリング / 眺望良好 / パントリー(食器・食品の収納庫) / ウォークインクローゼット

天井高2.5m以上 / リビング階段 / 全居室複層ガラスか複層サッシ / 都市ガス / 高台に立地

小学校 徒歩10分以内 / 平坦地 / 床暖房 / 可動間仕切り / 納戸 / 食器洗乾燥機 / 周辺交通量少なめ

整備された歩道 / 浄水器 / 高機能トイレ / ビルトインガレージ

~~~Lifeinformation~~~

田無富士見幼稚園:徒歩4分(319m)

西東京市立田無小学校:徒歩6分(462m)

西東京市立田無第一中学校:徒歩8分(628m)

セブンイレブン田無芝久保2丁目店:徒歩7分(491m)

Olympic田無店:徒歩6分(477m)

医療法人社団東光会西東京中央総合病院:徒歩7分(508m)

所在地 東京都西東京市田無町6‐14‐13
交通 西武新宿線『田無』駅 徒歩9分
西武新宿線『西武柳沢』駅 徒歩25分
JR中央線『武蔵境』駅 バス15分『田無駅』徒歩9分
西武池袋線『ひばりヶ丘』駅 バス13分 『田無駅』徒歩9分
間取り 2LDK+2S
建物面積 134.80㎡
土地面積 104.04㎡
権利 所有権
築年月 2026年3月中旬
構造 木造ストレート葺2階建て
接道状況 無、東4m幅(接道幅6.8m)
駐車場 有り(1台分)
用途地域等 第一種低層住居専用地域
建ぺい率/容積率 60%/160%
現況 空室
引渡し時期 相談 
備考 公営水道・本下水・都市ガス
取引態様 媒介

この物件とよく比較される物件